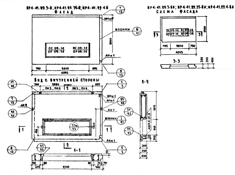
НР4-41.29.4-6

Чертеж изделия:
Чертеж НР4-41.29.4-6
Характеристики изделия:
ПараметрЗначение
Длина4095 мм
Ширина400 мм
Высота2900 мм
Масса5210 кг
Нормативный документСерия 1.132-1

НР4-41.29.4-6   Наружная стеновая панель рядовая по Серии 1.132-1.