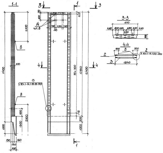
2ПС 114.3-15ш-1
Характеристики изделия:
Параметр | Значение |
---|---|
Длина | 1970 мм |
Ширина | 300 мм |
Высота | 12400 мм |
Масса | 17350 кг |
Нормативный документ | Серия 3.901.1-14 |
Цена:
Рассчитать стоимость2ПС 114.3-15ш-1 Панель стеновая по Серии 3.901.1-14.
Маркировка
2 - опускной способ производства работ;
ПС - панель стеновая;
114 - длина стеновой панели в дм;
3 - толщина стеновой панели в дм;
15 - тип армирования;
ш - вариант со шпоночным стыком;
1 - стеновая панель с закладными деталями для устройства горизонтального стыка.